info@arquitecturacercana.com

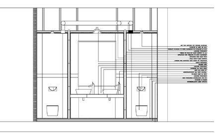
Restaurante-cafetería. Proyecto y gestión de construcción. Madrid.

Restaurante-cafetería. Proyecto y gestión de construcción. Madrid.
Proyecto en misión completa y gestión integral de construcción para la implantación y el desarrollo de una actividad de cafetería restaurante en el PAU de Sanchinarro, en Madrid.
Restaurante-cafetería. Proyecto y gestión de construcción. Madrid.
Restaurante-cafetería. Proyecto y gestión de construcción. Madrid.
Restaurante-cafetería. Proyecto y gestión de construcción. Madrid.
Restaurante-cafetería. Proyecto y gestión de construcción. Madrid.
Restaurante-cafetería. Proyecto y gestión de construcción. Madrid.
Restaurante-cafetería. Proyecto y gestión de construcción. Madrid.
Restaurante-cafetería. Proyecto y gestión de construcción. Madrid.
Restaurante-cafetería. Proyecto y gestión de construcción. Madrid.
Restaurante-cafetería. Proyecto y gestión de construcción. Madrid.

Arquitectura Integral Residencial Unifamiliar Residencial Colectivo Oficinas, Dotacional Comercial, Industrial Rehabilitación y Patología Restauración y Arqueología Eliminación de Barreras Project Management Construction Management Interiorismo y Reformas Urbanismo y Entorno  

Índice de Proyectos
Vivienda unifamiliar aislada. Proyecto de nueva planta. Segovia.
Vivienda unifamiliar aislada. Proyecto de rehabilitación integral. Ávila.
Vivienda unifamiliar aislada. Proyecto de nueva planta. Ávila.
Centro de estudios universitarios. Propuesta de nueva planta. Francia.
Edificio residencial. Proyecto de torre de comunicación vertical. Madrid.
Stand corporativo. Proyecto de nueva planta y Gestión integral. EEUU.
Tejido urbano. Anteproyecto y P M rehabilitación de infraviviendas. Madrid
Vivienda unifamiliar adosada. Proyecto de rehabilitación. Madrid.
Vivienda en edificio residencial. Proyecto y Gestión de reforma. Madrid.
Casa palacio. Proyecto y Gestión ampliación y reforma actividad. Madrid.
Residencia de estudiantes. Propuesta teórica de ampliación. Escocia.
Vivienda en edificio residencial. Proyecto de reforma. Madrid.
Manzana de viviendas. Propuesta de restauración y rehabilitación. Cuba.
Vivienda en edificio residencial. Proyecto y gestión de reforma. Madrid.
Vivienda unifamiliar. Propuesta teórica sobre actuación experimental.
Tejido urbano. Anteproyecto y P M rehabilitación de manzanas res. Madrid
Espacio expositivo. Propuesta teórica de ampliación museográfica Madrid
Edificio residencial. Proyecto de nueva planta. Panamá.
Oficinas. Proyecto y gestión de reforma y adecuación. Madrid.
Edificio residencial. Proyecto y gestión construcción estructuras. Panamá.
Enrejado histórico. Estudio arqueológico. Madrid.
Centro comercial y de ocio. Gestión integrada de proyecto. Madrid.
Edificio residencial. Estudio patológico y proyecto de actuación. Madrid.
Espacio expositivo Casa Decor 2006. Estudios previos y propuestas. Madrid
Edificio residencial. Proyecto de nueva planta. Toledo.
Vivienda unifamiliar. Propuesta teórica sobre construcción experimental.
Restaurante-cafetería. Proyecto y gestión de construcción. Madrid.
Centro museo de arte. Gerencia integrada de proyecto. León.
Tejido urbano. Concurso urbanístico Emilio Larrodera. 1er. premio. Madrid.
Stand corporativo. Propuesta para instalación en feria Construtec. Madrid.
Fundación cultural. Propuesta teórica de ampliación. Francia.
Establecimiento comercial. Proyecto y gestión de construcción. Panamá.
Edificio residencial. Estudio patológico para rehabilitación. Madrid.
Palacio urbano. Propuesta de rehabilitación integral. Madrid.
Vivienda en edificio residencial. Anteproyecto para rehabilitación. Madrid
Nave industrial. Proyecto de implantación y adecuación. Madrid.
Edificio residencial. Proyecto torre de comunicaciones verticales. Madrid.
Residencia de estudiantes. Propuesta conceptual de ampliación. Madrid.
Vivienda en edificio residencial. Proyecto de reforma. Madrid
Conjunto residencial. Gestión integral de construcción. Panamá.
Vivienda Unifamiliar Aislada. Dirección obra nueva planta. Guadalajara.
Establecimiento comercial. Proyecto de implantación. Madrid.
Vivienda unifamiliar aislada. Proyecto y gestión de reforma. Madrid.
Vivienda en edificación residencial. Anteproyecto de reforma. Madrid.
Viviendas en edificio residencial. Proyecto reforma y adecuación. Madrid.
Oficinas. Proyecto y gestión integral de construcción para reforma. Madrid
Oficina corporativa. Proyecto de implantación. Madrid.
Complejo comercial y empresarial. Promoción delegada. Asturias.
Vivienda unifamiliar aislada. Propuesta teórica de ampliación. Suecia.
Centro de estudios en edificio catalogado. Proyecto de actvidad. Madrid.
Edificio residencial. Proyecto torre de comunicaciones verticales. Asturias.
Vivienda en edificación residencial. Proyecto de adecuación. Madrid.
Biblioteca en campus universitario. Propuesta de nueva planta. Alicante.
Edificio de oficinas. Proyecto de reforma. Madrid
Vivienda en inmueble residencial. Anteproyecto de reforma. Madrid.
Stand corporativo. Proyecto de instalación para la feria SIMO. Madrid.
Vivienda Unifamiliar Aislada. Gestión integral de construcción. Panamá.
Quiosco embarcadero. Propuesta de nueva planta. Madrid.
Lienzo histórico de muralla. Estudio arqueológico. Toledo.
Vivienda unifamiliar pareada. Estudios previos para reforma. Madrid.
Conjunto residencial. Proyecto de nueva planta. Madrid.
Centro Comercial. Auditoría técnica. Sevilla.
Vivienda en inmueble residencial. Anteproyecto de ampliación. Madrid.
Aparcamiento en superficie comercial. Proyecto de nueva planta. Madrid
Este Sitio Web ha sido diseñado íntegramente por Alfredo Correa García para ArquitecturaCercana, estudio de arquitectos de Madrid, perteneciente a la sociedad Correa, Díaz y Triana, Arquitectos S.L.