













Proyecto de Ejecución:
Es la fase de trabajo que desarrolla el Proyecto Básico, con la determinación completa de detalles y especificaciones de todos los materiales, elementos, sistemas constructivos y equipos, y puede llevarse a cabo, en su totalidad, antes del comienzo de la obra, o parcialmente, antes y durante la ejecución de la misma.
Su contenido reglamentario es suficiente para obtener el visado colegial necesario para iniciar las obras.
Es por tanto, en esta fase, cuando el proyecto de arquitectura adquiere todas las características técnicas, económicas y constructivas que van a permitir llevar a cabo correctamente la construcción. En esta fase, si fuese necesario, por decisión de nuestro cliente o por cualquier otro motivo, se pueden llevar a cabo cambios en la arquitectura desarrollada en el precedente Proyecto Básico, siempre y cuando no afecten al conjunto de normativas urbanísticas para las cuales se haya otorgado licencia con la presentación de la anterior fase. Si estos posibles cambios necesitasen ser de mayor entidad, el Proyecto de Ejecución deberá ser presentado para su visado nuevamente con toda la información corregida igual a la desarrollada en el anterior Proyecto Básico.
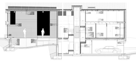
En el presente ejemplo se muestra cómo se especializa la información de proyecto en cuanto a su faceta técnica respecto a la anterior fase.
Esta fase incluirá básicamente los siguientes documentos:
El Proyecto de Ejecución corresponde al 30% del desarrollo íntegro del proyecto. Cada fase de proyecto incluye a las anteriores, de forma que en el conjunto del desarrollo completo, este Proyecto de Ejecución corresponde al 70% del total de los trabajos.
Arquitectura Integral
Residencial Unifamiliar
Residencial Colectivo
Oficinas, Dotacional
Comercial, Industrial
Rehabilitación y Patología
Proyectos de Restauración
Project Management
Construction Management
Licencias de Actividad
Eliminación de Barreras
Expedientes de Legalización
Interiorismo y Reformas
Proyectos de Urbanismo
Inspección Técnica de Edificios
Medición de Edificaciones
Levantamiento de Planos
Infografía y desarrollo 3D
Informes y Certificados
Dictámenes y Peritaciones
Valoraciones Inmobiliarias
Estudios de Mercado
Asesoramiento Técnico